







Investment For Sale Gosport
PROPERTY ID: 146111
PROPERTY TYPE
Investment
STATUS
Available
SIZE
6,437 sq.ft
Key Features
Property Details
The property is situated at the heart of Gosport centre, just west of the intersection of the pedestrian High Street and North Cross Street. High Street connects at each end to Gosport's circular access road, Mumby Road, which in turn leads to Gosport Marina and Ferry Port.
The town is accessed via the A32 Gosport Road from junction 11 of the M27. There is excellent access to Portsmouth, via the Harbour ferry which operates every 15 minutes (every 7.5 minutes at peak times) from Gosport Ferry Terminal (approximately 5 minutes walk from Royal Clarence Marina). The ferry journey time is four minutes to Portsmouth Harbour where there is a regular direct line train service to London Waterloo. Royal Clarence Marina benefits from 154 berths for all types of vessel. Southampton International Airport is within a 30 minute drive.
Location
The Property Is Situated At The Heart Of Gosport Centre, Just West Of The Intersection Of The Pedestrian High Street And North Cross Street. High Street Connects At Each End To Gosport's Circular Access Road, Mumby Road, Which In Turn Leads To Gosport Marina And Ferry Port.
The Town Is Accessed Via The A32 Gosport Road From Junction 11 Of The M27. There Is Excellent Access To Portsmouth, Via The Harbour Ferry Which Operates Every 15 Minutes (every 7.5 Minutes At Peak Times) From Gosport Ferry Terminal (approximately 5 Minutes Walk From Royal Clarence Marina). The Ferry Journey Time Is Four Minutes To Portsmouth Harbour Where There Is A Regular Direct Line Train Service To London Waterloo. Royal Clarence Marina Benefits From 154 Berths For All Types Of Vessel. Southampton International Airport Is Within A 30 Minute Drive.
Description
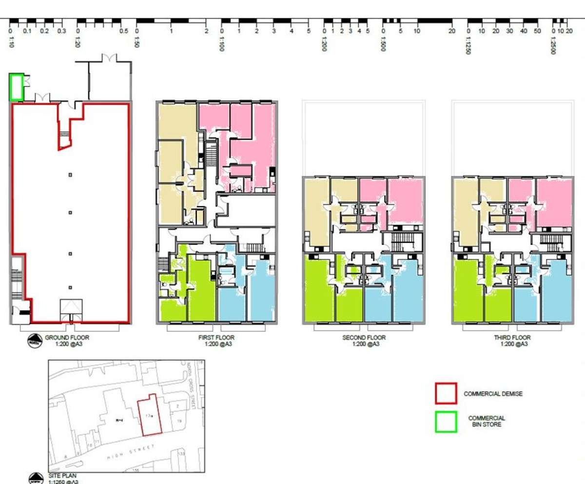
We Are Delighted To Offer This Hands-off Investment Of Twelve Newly Developed Apartments For Sale In Gosport. The Block Is Fully Let To A Single Registered Care Provider, Offering Guaranteed Income For A Term Of 5 Years. The Block Contains 12 Apartments, Plus Residential Lobby; 2 X 2-bed And 10x 1-bed.
Tenure Comments
We Are Seeking Offers In Excess Of £2,300,000 (exclusive) For The Freehold Investment. This Represents A Net Initial Yield Of 7.65% Assuming Purchasers Costs Of 6.34%.
The Property Is Held In An Spv And Therefore It Is Anticipated That The Sale Will Be Treated As A Togc.
Service Charge Information
The Property Runs A Service Charge To Cover The Repair, Upkeep, Cleaning And Maintenance Of The Common Areas And Share Structure. This Is Managed By The Housing Provider.
Planning
The Property Has Planning For Class C.
Vat
We Are Advised That The Property Is Not Elected For Vat.
Legal Costs
Each Party Will Be Responsible For Covering Their Own Legal Costs Incurred In The Transaction.